Concrete House 2
| Price | $5,900.00 |
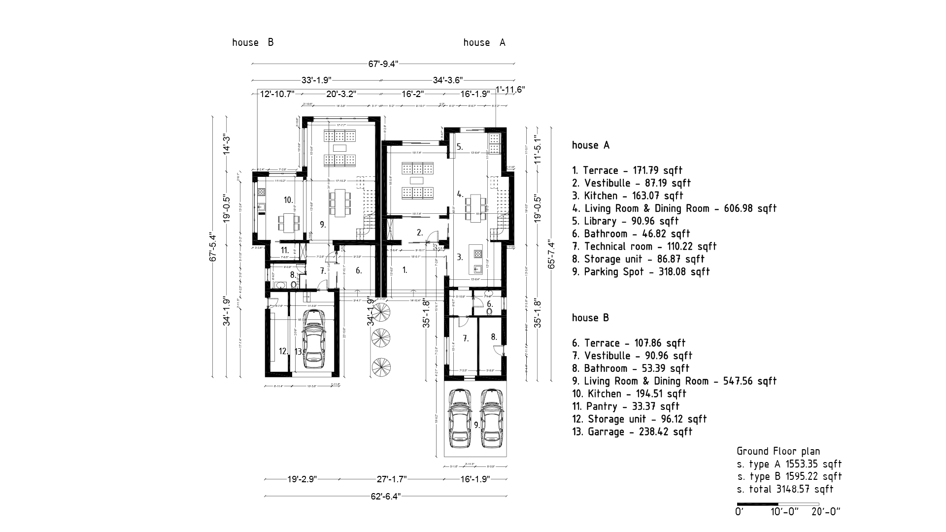
KEY SPECS
|
7.155,25 sqft AREA |
3 BEDROOMS |
6 BATHROOMS |
2 FLOORS |
5 TERRACES |
1 GARAGES |
Concrete House 2 offers 7,155.25 sqft of space with 3 bedrooms, 6 bathrooms, 2 floors, 5 terraces, and 1 garage. This modern home is ideal for a family that values spacious living, contemporary design, and versatility.
Concrete House 2 suits a family that enjoys a blend of privacy and communal activities. With multiple terraces and expansive indoor spaces, it's perfect for hosting gatherings, engaging in family activities, or simply relaxing. The garage provides ample space for vehicles and storage, catering to an active, modern lifestyle.
Choose Concrete House 2 to create a home that embodies modern luxury, with ample space for family life and entertaining, in a design that is both stylish and functional.
Read MoreRead Less
CONCEPT
|
a. Renderings JPEG b. Sketch plans PDF c. Construction License d. CAD Files e. Readable Reverse Plans [optional and complimentary] |
Electronic delivery 1- 2 business days |






